Le bien-être
Tout commence par une rencontre avec un kinésithérapeute, ostéopathe à Lyon. Il nous raconte que dans le centre ou il travaille (16 kinésithérapeutes, 3 médecins généralistes, 1 podologues) les occupant des lieux souffrent de plus en plus d’un problème de flux au niveau de l’accueil.
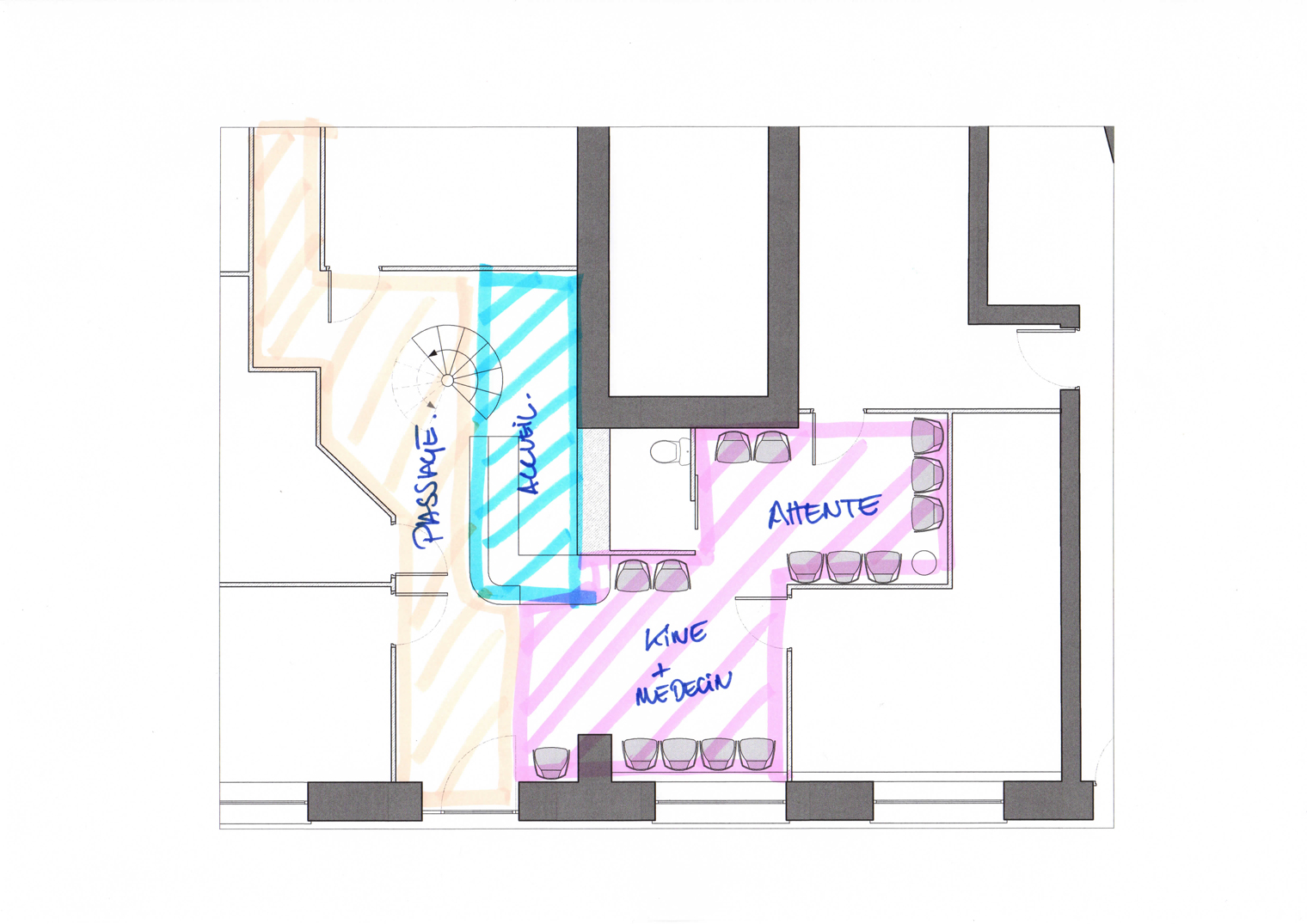
Effectivement, à la première visite sur place, nous nous sommes rendu compte que la banque d’accueil était placé dans un couloir qui créait un goulot d’étranglement entre la salle d’attente et l’accès des salles de soin. De plus, nous sommes dans un lieu de santé, où, quand les patients arrivent sont dans la douleur. En plus d’arriver dans un lieu froid et sans vie, cette problématique venait rajouter du stresse supplémentaire aux patients.
L’idée est de remettre l’accueil au centre afin de créer deux espaces d’attente, 1 pour les kinésithérapeutes et 1 autre pour les médecins généralistes. En therme de décoration, il est important de réchauffer l’atmosphère avec des ton chaud et naturels comme le bois, et surtout de créer une ambiance accueillante et relaxante.


Carte d’identité
✔ Destination : Centre de santé
✔ Surface : 50 m²
✔ Budget : NC
✔ Etat : En cours de réalisation
Une histoire à raconter ?
Vous avez un projet de transformation, de rénovation,
ou d’aménagement professionnelle ?
Contactez-nous pour une prestation personnalisée !





